"...Pani Joanno moje założenia co do projektu: póki co jesteśmy sami z żoną ale docelowo 2+2. Działka ma 850m2 wjazd od południa :/ szerokość 23-24m. Założenie: dość przestronny salon z lekko wydzieloną częścią między strefą relaksu TV a częścią jadalną (myślę, że 30m2 minimum), plus kuchnia otwarta na jadalnie - miło by było żeby było miejsce na wyspę (żona sobie wymarzyła). Dodatkowo małe WC dosłownie na umywalkę i kibelek, gabinet(pokój dla gości) - niekocznie, jeszcze się nad tym zastanwiam (chodzi mi o jak najniższe koszty a to znacząco podniesie powierzchnie domu), garaż jednostanowiskowy (zastanawiam się czy budować w bryle domu, czy odizolowować dom od garaży (?) oraz kotłowni (tutaj również zastanawiam się nad kotłem na ekogroszem, a kotłem gazowym). Piętro 3 sypialnie, łazienka conajmniej 8m2, garderoba połączona z naszą sypilanią.
Pozostaje kwestia pralni, myślałem żeby umieścić
pralnie w pomieszczeniu łączącym np wejście z garaży do domu (taki ala
przedsionek), ewentualnie można wydzielić pomieszze na piętrze.
A
teraz moje wątpliwości. Na forum wszędzie piszą o kosztach, że płacimy
za powierzchnię netto. Oczywiście zgadzam się z tym, więc na chłpski
rozum stwierdziłem, że najtaniej powinno być wybudować klocka w stylu
nowoczesnym, ponieważ stosunek powierzchni użytkowej do powierzchni
netto jest najbardziej zbliżony (nie tracimy metrażu przez skosy). Ale
zostałem zweryfikowany że klocej w stylu nowoczesnym to dom drogi w
budowie. Wstępnie wybrałem dosyć popularny projekt https://www. domoweklimaty.pl/pl/projekty/ 2936/projekt-domu-kasjopea
generalnie pasuje idealnie - nie ma tylko pralni którą pewnie uda się
gdzieś zrealizować. Wszystkie pomieszczenie oraz rozkład są dla mnie
idealne, ale pozostaje kwestia koszztów. i tutaj zgodnie wszyscy mówią,
że lepie wybudować (mój drugi faworyt) stodołę. Wyjdzie taniej ( a
generalnie jest to ważny czynnik). Jeśli chodzi o stodołę to
rozmieszczenie pomieszczeń/metraż (pomijam póki co fakt że salon
docelowo będzie od południa a kuchnia od północy) możemy przyjąć taki
jak w Kasjopei (naprawdę ten rozkład nam leży). Stodoła bez okien
dachowych (może jedno) - wuykorzystanie okien w ścianach szczytowych
aby było taniej i nie było mostków, żadnych lukarn oraz balkonów.
Podsumowując
nie mam żadnej decyzji odnośnie projektu, tylko wstępne założenia które
projekt Kasjopeja wg mnie idealnie spełnia (kilka drobnych zmian),
natomiast jak to wyjdzie w przypadku stodoły ciężko powiedzieć.
Czy
może się Pani odnieść do w/w projektu pod względem kosztów? jak to
wyjdzie budując klocek w stylu nowoczesnym, a jka budując stodołę z tymi
samymi (lub bardzo zbliżonymi) wymiarami?
Dziękuje za wszelkie porady i pomoc.
Pozdrawiam"
Projekt Kasjopea jest faktycznie drogi w budowie, do tego nie do końca przemawia do mnie jego stylistyka, dlatego też podpisuję się pod sugestiami dotyczącymi dalszych poszukiwań...
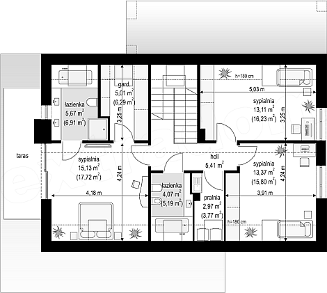
Pierwszy projekt w typie stodoły który wydaje mi się interesujący :
Jest prosty, atrakcyjny i niedrogi w budowie, jedynie wykonanie elewacji może pochłonąć nieco więcej środków - ostatecznie można wykonać ją również w tynku.
W ramach adaptacji można powiększyć nieco salon i wysunąć jadalnię z
bryły budynku.
Kosztorys przedstawiony przez pracownię sprzedającą projekt :
| Realizacja stanu surowego otwartego | 129 192,00 zł | |||
| Realizacja stanu surowego zamkniętego | 192 132,00 zł | |||
| Koszt robót wykończeniowych | 248 345,00 zł | |||
| Realizacja domu pod klucz | 440 477,00 zł |
Koszty podane netto, należy doliczyć podatek VAT
Decydując się na ten projekt rozważałabym wykonanie ściany jako trójwarstwowej i ukrycie rynien.
www.frs-architekci.pl
Decydując się na ten projekt rozważałabym wykonanie ściany jako trójwarstwowej i ukrycie rynien.
www.frs-architekci.pl

Komentarze
Prześlij komentarz